£2,100,000 - Available


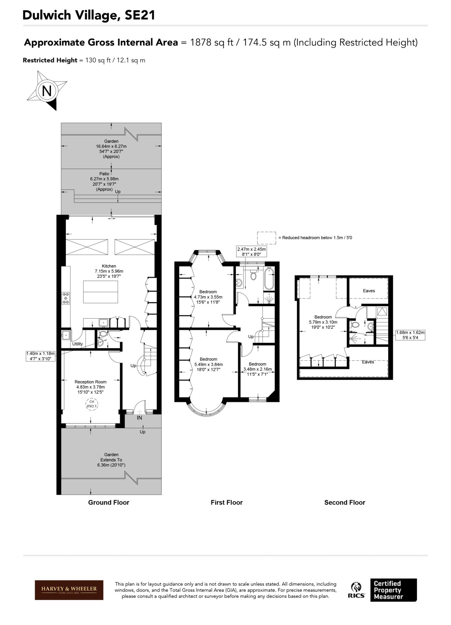
  • 4 Bedrooms
  • Reception room
  • Family bathroom
  • Open plan kitchen/dining/family room
  • Shower room
  • Utility room
  • Ground floor WC
  • South-west facing garden
  • Off street Parking
  • Superbly located for Dulwich state and private schools

Offered chain-free, this four bedroom terraced family home is located right in the heart of Dulwich Village. The property has a front garden with off street parking, as well as a good size south-west facing rear garden, with a stunning outlook over the Griffin Playing Fields.

There is a spacious entrance hallway which leads on the ground floor to a reception room looking to the front of the property. The hall continues through to a spacious and modern kitchen/dining/family room with sliding doors opening to the patio and garden. From the kitchen there is access to a utility room. There is also a downstairs WC.

On the first floor there are three bedrooms, two of which have large built in wardrobes. The smaller bedroom is currently used as an office. There is also a family bathroom. The second floor has a further double bedroom, with built in storage cupboards and views over the fields. There is also a shower room on this floor.

The house is ideally located for the shops, cafes and amenities of Dulwich Village. There are two outstanding primary schools within a few moments walk of the front door and the Charter School is a mere five minutes walk away. North Dulwich station is nearby with regular trains to London Bridge and access to the London Overground via Peckham Rye. Herne Hill station has direct trains to Victoria, Blackfriars, Farringdon and St Pancras. A 15 minute bus journey takes you to Brixton for the Victoria Line.

The photos were taken in 2023 prior to a letting of the property.



Council Tax
London Borough Of Southwark, Band F


/// liability.bring.army is the what3words address for the best entrance. what3words has given every 3 metre square in the world a unique combination of 3 random words.

Floor Plan
EER Chart

The Energy-Efficiency Rating is a measure of a home's overall efficiency. The higher the rating, the more energy-efficient the home is, and the lower the fuel bills are likely to be.

Utility Supply Type
Electric Mains Supply
Gas Mains Supply
Water Mains Supply
Sewerage None
Broadband None
Telephone None

Other Items Description
Heating Gas Central Heating
Garden/Outside Space Yes
Parking Yes
Garage No

Broadband Coverage Highest Available Download Speed Highest Available Upload Speed
Standard 12 Mbps 1 Mbps
Superfast Not Available Not Available
Ultrafast 1000 Mbps 1000 Mbps

Mobile Coverage Indoor Voice Indoor Data Outdoor Voice Outdoor Data
EE Likely Likely Enhanced Enhanced
Three Likely Likely Enhanced Enhanced
O2 Likely Likely Enhanced Enhanced
Vodafone Likely Likely Enhanced Enhanced

Broadband and Mobile coverage information supplied by Ofcom.


marker icon